I am trying to find the best and most cost-effective way to replace the ductwork under a 14X80 1980's mobile home in NE Oklahoma. The downflow furnace/blower unit is near one end of the house, with a single run of duct going the length of the floor, east to west, and feeding 6 floor registers in a straight line, 1 to each room. There are 2 registers to
the east of the furnace and 4 to the west.
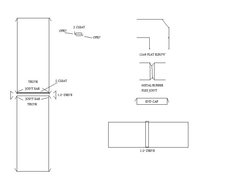
The original ductwork was made of duct board, running directly beneath the vents, with rectangular metal boots going straight off the top side of the trunk to each 4X10 register. It suffered a rat infestation during the winter when it was unused (we use a wood heating stove in winter) and we removed it about two years ago, including the badly rusted register boots. My dad replaced the original duct with an uninsulated DIY painted plywood box that mildewed, and which I just removed. Because the original ductwork is gone, I don't know the exact dimensions of it, but I believe it was about 12" wide by 6" high.
I want to purchase the components and install the duct myself to save costs. I expected to just run a 10-inch rigid metal duct the length of the house, with saddle collars on top connecting to the register boots, but I'm running into trouble with the space constraints created by the framing under the mobile home. The floor is on 2X6 joists, and the ductwork runs between 2 lengthwise 10-inch I-beams. Every 8 feet or so, these I-beams are tied together by an angle-iron cross-piece welded to the bottom edge, leaving only a ten-inch space between the joists and the cross-pieces to run my duct, unless I go below the angle-iron cross-pieces, in which case I would have to snake the main trunk over or around the mobile home axles. I thought this would be fine, until I went to purchase register boots and saddle collars and found that they won't fit into the 5-1/2 inches between the duct and the floor.
I was advised to see if a mobile home supply company has special HVAC fittings for this kind of situation, but I can't seem to find any around here who will even answer the phone. This is likely a common enough setup that there must be a reasonably simple solution somewhere. Will a round duct even work for this application, or should I go
with a rectangular duct? Either way, is there a source for low-profile fittings and boots to go straight up from the duct to the registers in a space of as little as 5-1/2 inches? The people I talked to assumed that I would be branching from the main duct to registers on the left and right, and seemed flummoxed by how one would connect straight up to the floor from the main duct. If I have to, I can drop the whole run down below the trailer framing, but this will require more fittings, expense, and avoiding other obstructions. Any ideas?
I will be happy to answer any additional questions if someone needs clarification.
the east of the furnace and 4 to the west.
The original ductwork was made of duct board, running directly beneath the vents, with rectangular metal boots going straight off the top side of the trunk to each 4X10 register. It suffered a rat infestation during the winter when it was unused (we use a wood heating stove in winter) and we removed it about two years ago, including the badly rusted register boots. My dad replaced the original duct with an uninsulated DIY painted plywood box that mildewed, and which I just removed. Because the original ductwork is gone, I don't know the exact dimensions of it, but I believe it was about 12" wide by 6" high.
I want to purchase the components and install the duct myself to save costs. I expected to just run a 10-inch rigid metal duct the length of the house, with saddle collars on top connecting to the register boots, but I'm running into trouble with the space constraints created by the framing under the mobile home. The floor is on 2X6 joists, and the ductwork runs between 2 lengthwise 10-inch I-beams. Every 8 feet or so, these I-beams are tied together by an angle-iron cross-piece welded to the bottom edge, leaving only a ten-inch space between the joists and the cross-pieces to run my duct, unless I go below the angle-iron cross-pieces, in which case I would have to snake the main trunk over or around the mobile home axles. I thought this would be fine, until I went to purchase register boots and saddle collars and found that they won't fit into the 5-1/2 inches between the duct and the floor.
I was advised to see if a mobile home supply company has special HVAC fittings for this kind of situation, but I can't seem to find any around here who will even answer the phone. This is likely a common enough setup that there must be a reasonably simple solution somewhere. Will a round duct even work for this application, or should I go
with a rectangular duct? Either way, is there a source for low-profile fittings and boots to go straight up from the duct to the registers in a space of as little as 5-1/2 inches? The people I talked to assumed that I would be branching from the main duct to registers on the left and right, and seemed flummoxed by how one would connect straight up to the floor from the main duct. If I have to, I can drop the whole run down below the trailer framing, but this will require more fittings, expense, and avoiding other obstructions. Any ideas?
I will be happy to answer any additional questions if someone needs clarification.



Comment